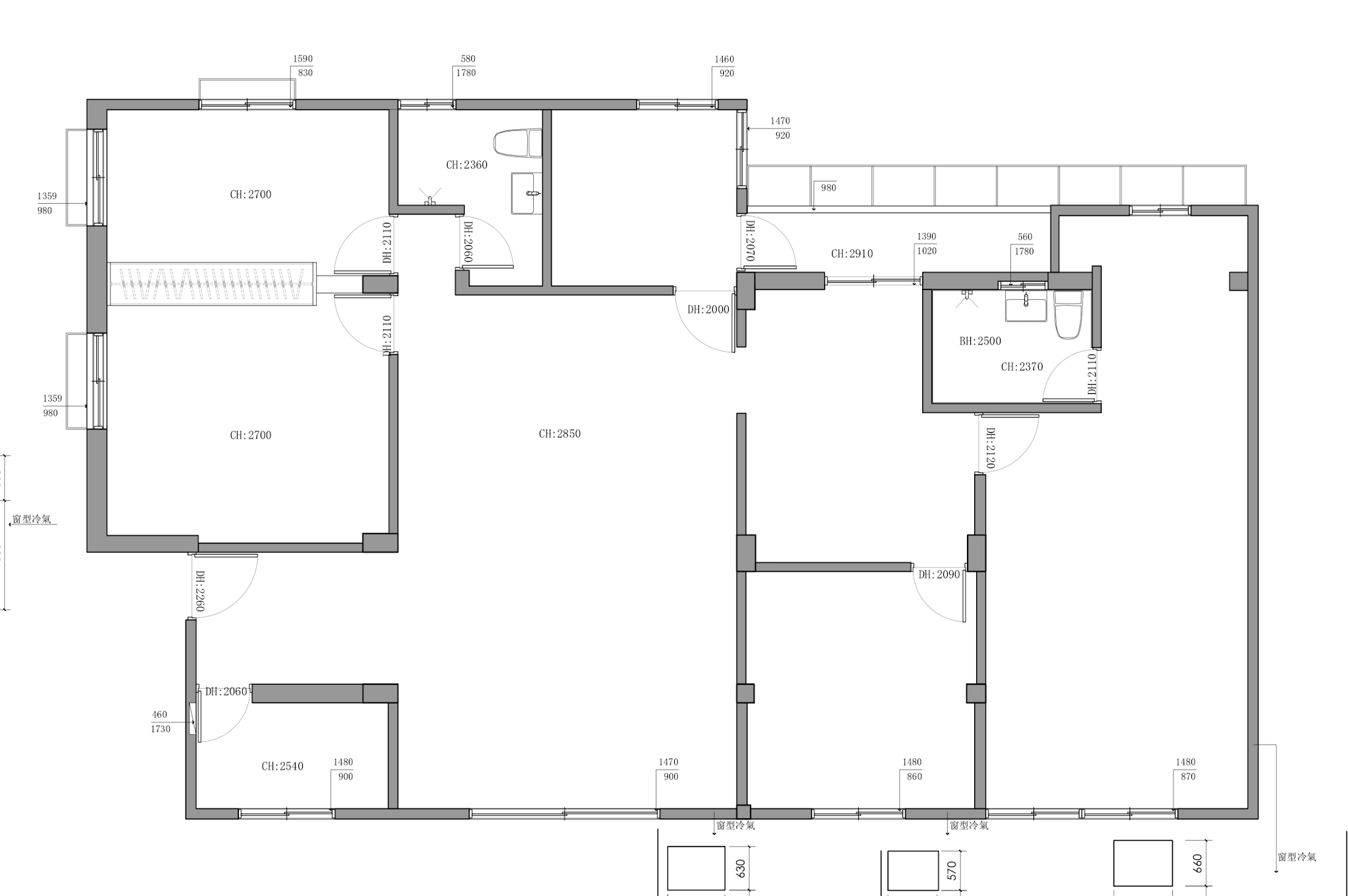
在室內設計的流程裡,平面規劃是骨架,風格樣貌是表皮,我一直認為妥善規劃好平面格局其實已經達成設計70%,是設計師對空間生活體驗及現實尺度融合後的精隨。這個案子的平面設計規劃我同時以業主和設計師的角色介入,並不像外人看來簡單輕鬆,事實上也經歷過很多的掙扎和妥協。
再上一篇文章中有提到我在選屋時,已經看出這間老公寓的改裝潛力,除了已經具備了我們一家五口的合理的房間數量之外,最大的優勢就是廚房餐廳和客廳,可以串聯形成我想要寬敞開放空間,再來就是入口處的儲藏室看似不起眼,卻是千金難買,讓家中的雜物有更完整的收納空間。在我經手的設計案裡能具備這兩個條件的住宅通常都會有很好的設計成果。
設計平面
不以電視為中心的客廳規劃更有彈性
其實捨棄以電視為中心的客廳規劃是我們家一直以來的習慣,電視機對於我們家來說只是假期的娛樂,平時根本很少會使用,餐桌反而對我們來說利用率更高,無論看書、寫作業、玩桌遊或是朋友來訪時聊天喝酒都會使用,以餐桌為開放空間的核心是符合我們的生活習慣規劃。
少了電視的客廳其實增加了沙發的擺放彈性,我設計了符合我們家尺度的組合沙發,可以依據不同的需求做靈活的組合,讓使用方式更具多樣性。
![]() |
| 我們的週末電影院 |
完整的機能性空間規劃可以讓全職家管更輕鬆整理家務
對於一個全職三寶媽媽來說,如何減輕家務的負擔是很重要的設計課題,開放式廚房是很多人嚮往的設計,也是太太這次唯一的要求,除了開闊的空間感,還是要依照操作流程規劃,這部分在之前的文章中有分享過(掌握四大訣竅,人人都能有五星級廚房)。因為我和太太都喜愛烹飪,所以在廚房的規劃上也花了不少心思討論修改。
公用衣櫃的規劃概念提高洗衣折衣的效率
洗衣服、折衣服是全職媽媽很吃重的工作,以前看到太太從臥室搬著沈重的髒衣籃到後陽台,然後再把洗好的衣服堆在沙發上慢慢折,最後還要分送到各個房間的衣櫃,這整個操作流程其實很沒有效率,所以這次自己家也就嘗試利用空間規劃來改善這個問題。經過思考後有了公共衣櫃的概念。我改變了通往後陽台以及主臥浴室的門洞開口,兩個機能性的空間出入口集中後在走道上設置了公共衣櫃,洗澡前可以直接拿取乾淨的衣物,洗完澡也就近把髒衣服放在離陽台近的髒衣籃等待送洗,乾淨的衣服可以在公共衣櫃的平台上整理分類,直接放在抽屜裡或是掛在吊衣桿上等家人認領,媽媽不用再辛苦的把摺好的衣服分送到各個房間。
依據我們家的人口數,捨棄主臥室獨立的衛浴改採兩間公共衛浴的決定其實是比較合理的決定,也成就了利用公共衣櫃區整合洗澡和洗衣空間以提升太太洗衣效率的設計概念。
| 在公共衣櫃區的天花增設吊隱式除溼機,加強浴室的除濕效果,手洗衣物或是烘乾機偶有衣物局部未乾的情況,可以吊掛在公共衣櫃的吊衣桿除濕,一舉數得。 浴室雙面盆的設計我同時使用台面盆和下坎盆,改善成人和孩童的身高落差問題,適合全家使用的浴室。下坎盆手洗衣物也很方便。 |
![]() |
| 下坎盆還可以洗嬰兒(特別提醒,下坎盆有承重的結構問題, 不是所有的下坎盆都可以這樣使用,要注意安全) |
良好的平面規劃對於室內設計來說真的很重要,也是我在評鑑公司年輕設計師程度的一個重要參考指標,除了對於空間尺度是否熟練,其實更重要的還是對於生活行為的體驗,才能更進一步的去改善生活中遭遇的問題,這樣的設計才能融入生活而不是停留在表象的呈現。所有設計行為本來就是建立在改善生活品質的基礎上,當然室內設計也不例外。
設計師愛上了一間40年的老公寓
更多設計相關資訊,請連結千屹官方網站 https://imdtaipei.com.tw
👉 延伸閱讀:






留言
張貼留言